Trilocale in vendita

Narzole, Via Cristoforo Colombo
€ 133.000
3 locali 3 locali
106 Mq 106 Mq
2 bagni 2 bagni

Trilocale in vendita

Narzole, Via Cristoforo Colombo

Descrizione annuncio

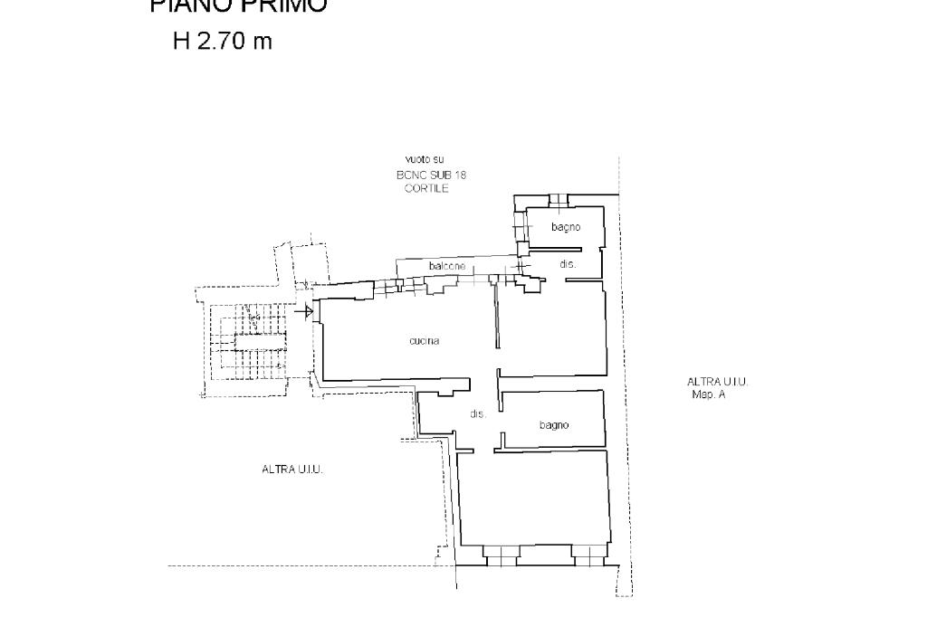
In centro paese proponiamo in vendita appartamento al primo piano di uno stabile composto da poche unità abitative. La palazzina è stata completamente ristrutturata e presenta un ascensore. L'ingresso avviene direttamente sulla zona giorno formata da soggiorno con angolo cottura. Il disimpegno conduce alla prima camera matrimoniale, impreziosita dal bagno privato dotato di tutti i sanitari e box doccia più un antibagno utilizzabile come lavanderia. Tutti i locali hanno sfogo sul balcone pertinenziale. Conclude la zona notte il secondo servizio completo di tutti i sanitari e anch'esso dotato di box doccia, il ripostiglio e la seconda camera da letto, arieggiata dalle due finestre che affacciano sulla via principale. Il riscaldamento è semiautonomo a pavimento. A lavori ultimati la classe energetica sarà superiore a quella attuale rilevata. Attualmente vi è la possibilità di acquistare una o due autorimesse singole ancora disponibili. La cantina pertinenziale al piano interrato conclude la proposta. Vengono valutate formule di riservato dominio.

Ogni agenzia ha un proprio titolare ed è autonoma. - Le presenti informazioni non costituiscono elemento contrattuale.

Mostra tutto

Nelle vicinanze

Trasporto pubblico Trasporto pubblico
Narzole (Bivio)
Narzole (Bivio)
2,8 Km
Scuole Scuole
Scuole
130 m
Scuole elementari
240 m
Scuole medie
290 m
Farmacia Farmacia
Farmacia
20 m
Mostra tutto

Caratteristiche

Rif.:
60876500
Piano:
1 di 4 con ascensore (Piano medio)
Balconi:
1
Camere da letto:
2
Arredamento:
Assente
Condizionamento:
Assente
Mostra tutto
Prezzo Prezzo
€ 133.000
Rata mutuo Rata mutuo
€ 613 / mese
Spese annue Spese annue
€ 0
Proponi il tuo prezzoProponi il tuo prezzo
Immobile valutato con T·Valuta

Classe Energetica

B
B
B
B
B
B
B
B
B
EP globale non rinnovabile:
6388.00 kW h/m² anno
EP globale rinnovabile:
1359.00 kW h/m² anno
EP invernale del fabbricato:
EP estiva del fabbricato:
Anno di costruzione:
1900
Riscaldamento:
Centralizzato
Tipo impianto:
A pavimento
Tipo alimentazione:
Metano

Ti interessa visionare l'immobile?

Fissa un appuntamento  Fissa un appuntamento

Richiedi informazioni

* Questi campi sono obbligatori

Calcola il tuo mutuo

Semplice e senza impegno
Anticipo

( % )
Mutuo

( % )

pochi semplici passi

inserisci i tuoi dati
Questionario completato
Grazie per aver richiesto un appuntamento senza impegno con un nostro Consulente del Credito e Assicurativo.

Hai inserito correttamente tutti i dati necessari e a breve riceverai una e-mail con un link da convalidare per inviare i tuoi dati.
Affiliato
Studio Cherasco Case Sas
Via Bra, 28/G 12062 Cherasco (CN)

Il nostro staff


  • Giusirosalia Piazza
    Affiliata

  • Sara Auddino
    Coordinatrice

  • Gian Michele Piccolo
    Collaboratore
Via Bra, 28/G 12062 Cherasco (CN)
Zona: Cherasco-Narzole-La Morra-Barolo-Novello
Mostra su mappa
Orari: Lunedi-Venerdi 9:00-12:30; 14:30-19:30 Sabato 9:00-12:30; 14:30-17:00
Affiliato
Studio Cherasco Case Sas
Via Bra, 28/G 12062 Cherasco (CN)

2025 Tecnocasa Franchising S.p.A. - P. IVA 08365160152 - Via Monte Bianco 60/A 20089 Rozzano (MI). Ogni agenzia ha un proprio titolare ed è autonoma. Privacy policy | Policy utilizzo | Cookie policy