Porzione di bifamiliare in vendita

Cherasco, Via Paolo VI - Roreto
€ 450.000
4 locali 4 locali
148 Mq 148 Mq
2 bagni 2 bagni

Porzione di bifamiliare in vendita

Cherasco, Via Paolo VI - Roreto

Descrizione annuncio

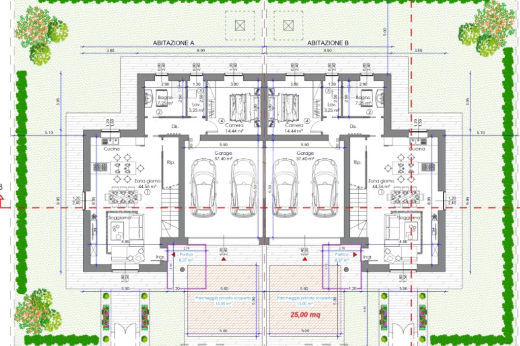
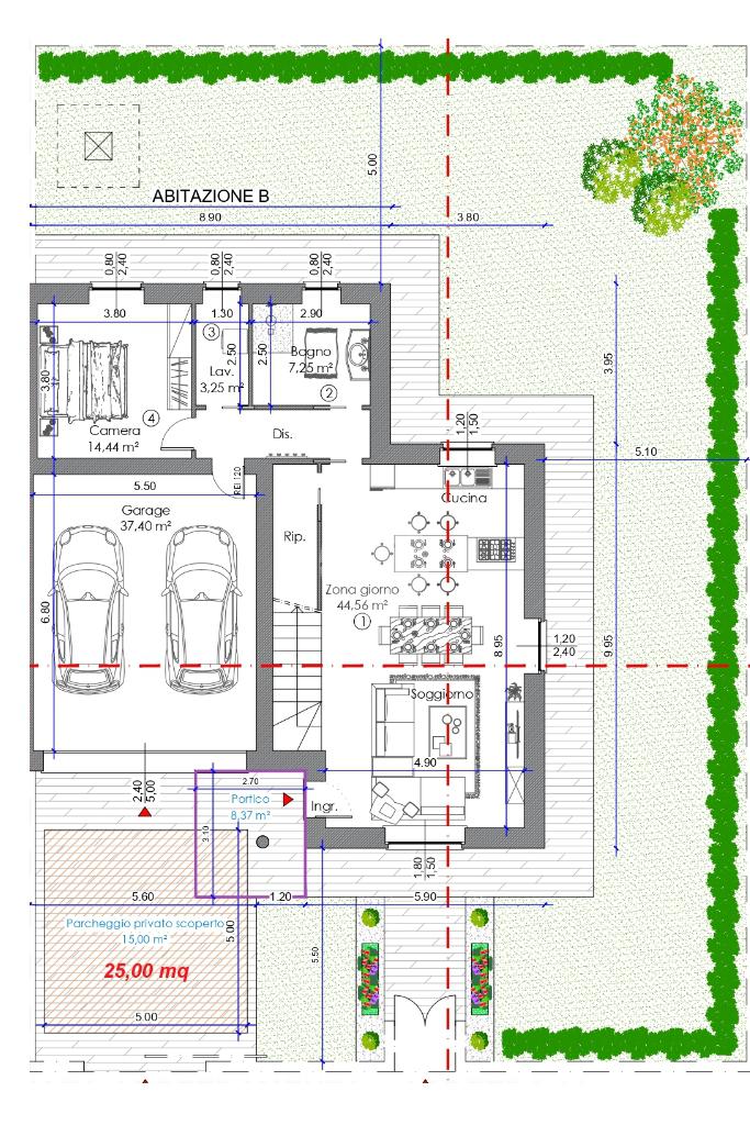
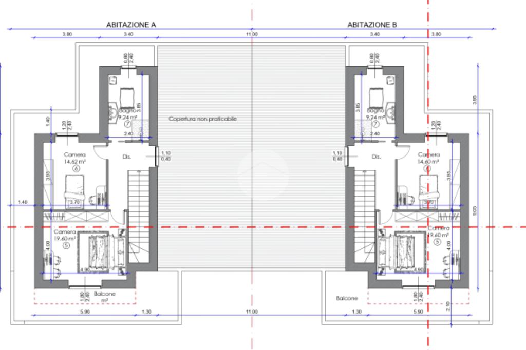
Nel comune di Cherasco, nella tranquilla località di Roreto, è disponibile una porzione di bifamiliare di nuova costruzione. L'immobile si sviluppa su due livelli e offre spazi ben distribuiti. Al piano terra, la zona giorno accoglie un ampio soggiorno, l'angolo cottura moderno, la prima camera da letto, il bagno e la lavanderia. Al primo piano si trovano due ulteriori camere da letto ed il secondo bagno. La proprietà è arricchita da un balcone e dal giardino privato, ideale per momenti di relax all'aperto. Il box auto doppio garantisce ampio spazio per il parcheggio. L'immobile è dotato di un impianto fotovoltaico, che assicura efficienza energetica e risparmio. Essendo una nuova costruzione, Il capitolato è consultabile per personalizzare le finiture secondo le proprie esigenze.

Ogni agenzia ha un proprio titolare ed è autonoma. - Le presenti informazioni non costituiscono elemento contrattuale.

Mostra tutto

Nelle vicinanze

Trasporto pubblico Trasporto pubblico
Bra
Bra
2,2 Km
Cherasco (Roreto Atlante)
Cherasco (Roreto Atlante)
170 m
Bra (Bergoglio)
Bra (Bergoglio)
780 m
Ricariche auto elettriche Ricariche auto elettriche
Bra Servizi SRL
1,2 Km
Stazione di Bra | ENELX
2,2 Km
Scuole Scuole
Scuole
1,1 Km
Istituto Salesiano San Domenico Savio
1,9 Km
Asilo Nido Comunale
2,2 Km
Liceo Giovanni Giolitti
2,3 Km
Scuola Secondaria Superiore Ernesto Guala
2,3 Km
Farmacia Farmacia
Farmacia
580 m
Fides
2,1 Km
Farmacia Cravero
2,2 Km
Farmacia San Rocco
2,5 Km
Sacro Cuore
2,6 Km
Ospedali Ospedali
Casa di Cura Privata Città di Bra
2,8 Km
ASL CN2 Consultorio Familiare CUP
2,9 Km
Supermercati Supermercati
Penny Market
970 m
Mercatò Local
1,3 Km
Lidl
1,9 Km
Prestofresco
2,4 Km
Negozi Negozi
Panetteria Antichi Sapori
1,4 Km
Panetteria Almini Daniele
1,8 Km
Chiva's
2,4 Km
Stefanel
2,4 Km
Didi Dual Design
2,4 Km
Bar Bar
Bar Cremeria Il Chiosco
2,2 Km
Sister Cafè
2,3 Km
Bar Chiavassa
2,4 Km
Il Centro
2,4 Km
Talamini Cafè
2,4 Km
Ristoranti Ristoranti
Ristorante Orchidea
120 m
Tokyo Sushi
710 m
L'Oste
720 m
Tira & Molla
1,4 Km
Ristoburger
2,0 Km
Mostra tutto

Caratteristiche

Rif.:
61132888
Piano:
1 di 1 (Piano su più livelli)
Box:
2
Balconi:
1
Camere da letto:
3
Arredamento:
Completo
Mostra tutto
Prezzo Prezzo
€ 450.000
Rata mutuo Rata mutuo
€ 2.136 / mese
Spese annue Spese annue
€ 0
Proponi il tuo prezzoProponi il tuo prezzo

Classe Energetica

Questo immobile è esente da classe energetica
Anno di costruzione:
2025
Riscaldamento:
Autonomo
Tipo impianto:
A pavimento
Tipo alimentazione:
Metano

Ti interessa visionare l'immobile?

Fissa un appuntamento  Fissa un appuntamento

Richiedi informazioni

Clicca su Leggi per aprire l'informativa
* Questi campi sono obbligatori

Calcola il tuo mutuo

Semplice e senza impegno
Anticipo

( % )
Mutuo

( % )

pochi semplici passi

inserisci i tuoi dati
Questionario completato
Grazie per aver richiesto un appuntamento senza impegno con un nostro Consulente del Credito e Assicurativo.

Hai inserito correttamente tutti i dati necessari e a breve riceverai una e-mail con un link da convalidare per inviare i tuoi dati.
Affiliato
Studio Cherasco Case Sas
Via Bra, 28/G 12062 Cherasco (CN)

Il nostro staff


  • Giusirosalia Piazza
    Affiliata

  • Sara Auddino
    Coordinatrice
Via Bra, 28/G 12062 Cherasco (CN)
Zona: Cherasco-Narzole-La Morra-Barolo-Novello
Mostra su mappa
Orari: Lunedi-Venerdi 9:00-12:30; 14:30-19:30 Sabato 9:00-12:30; 14:30-17:00
Affiliato
Studio Cherasco Case Sas
Via Bra, 28/G 12062 Cherasco (CN)

2026 Tecnocasa Franchising S.p.A. - P. IVA 08365160152 - Via Monte Bianco 60/A 20089 Rozzano (MI). Ogni agenzia ha un proprio titolare ed è autonoma. Privacy policy | Policy utilizzo | Cookie policy