Trilocale in vendita

Cherasco, Via Dell'Ospedale
€ 219.000
Prezzo aggiornato
3 locali 3 locali
102 Mq 102 Mq
2 bagni 2 bagni

Trilocale in vendita

Cherasco, Via Dell'Ospedale

Descrizione annuncio

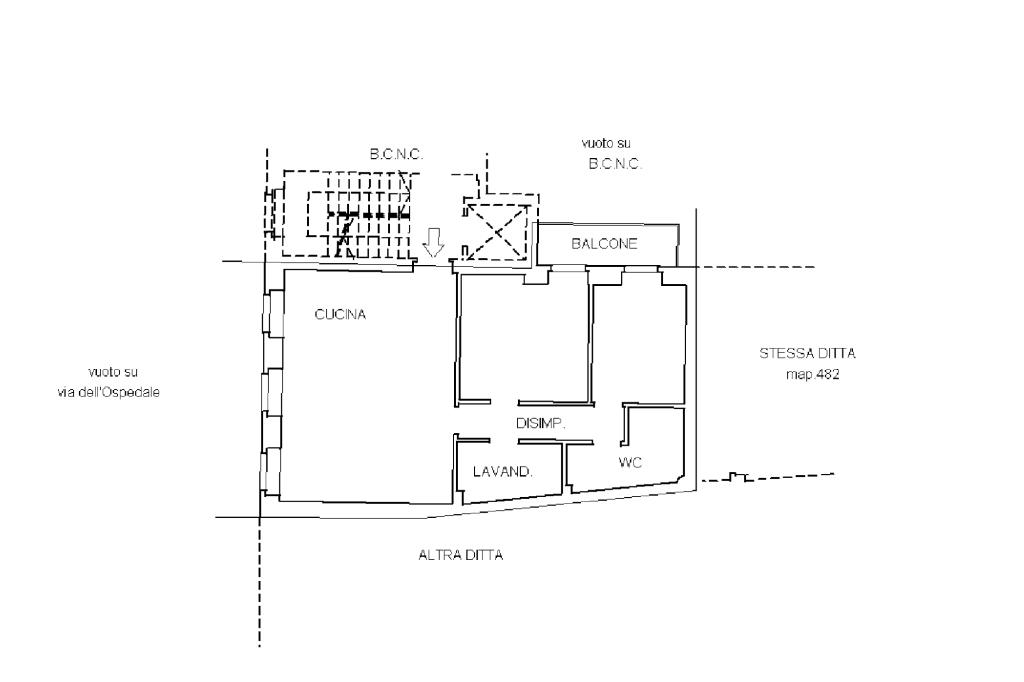
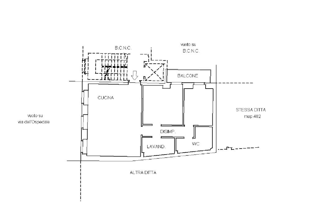
Nel cuore di Cherasco, dentro le storiche mura, proponiamo in vendita un trilocale situato al primo piano di un edificio composto da sole quattro unità e dotato di ascensore. L'immobile, ristrutturato completamente nel 2020, offre una superficie ben distribuita. L'ingresso avviene sulla zona giorno con angolo cottura, da cui si apre il corridoio che conduce alle diverse stanze. La zona notte è formata dalle due camere da letto dotate di accesso sul balcone pertinenziale, il servizio patronale e la lavanderia. L'appartamento è dotato di ventilazione meccanica controllata e sistema di allarme antifurto volumetrico e perimetrale, per garantire comfort e sicurezza. I vetri doppi assicurano un ottimo isolamento termico e acustico. La vendita include la nuova mobilia, pronta per essere utilizzata. Completa la proprietà la cantina. Il riscaldamento autonomo permette una gestione efficiente dei consumi, regolabile grazie alla caldaia a condensazione. Le spese condominiali sono irrisorie. Una soluzione abitativa che unisce modernità e praticità in una delle zone più affascinanti di Cherasco.

Ogni agenzia ha un proprio titolare ed è autonoma. - Le presenti informazioni non costituiscono elemento contrattuale.

Mostra tutto

Nelle vicinanze

Trasporto pubblico Trasporto pubblico
Cherasco (Roreto Posta)
Cherasco (Roreto Posta)
2,5 Km
Cherasco (Roreto v. Montegrappa)
Cherasco (Roreto v. Montegrappa)
2,6 Km
Scuole Scuole
Scuole
210 m
Farmacia Farmacia
Farmacia
50 m
Supermercati Supermercati
Dpiu
1,9 Km
Negozi Negozi
Negozi
170 m
Ristoranti Ristoranti
La torre
30 m
Osteria La Lumaca
160 m
Operti 1772
180 m
Ristorante Orchidea
2,8 Km
Mostra tutto

Caratteristiche

Rif.:
61182481
Piano:
1 di 2 con ascensore (Piano medio)
Balconi:
1
Camere da letto:
2
Arredamento:
Completo
Condizionamento:
Autonomo
Mostra tutto
Prezzo Prezzo
€ 219.000
Rata mutuo Rata mutuo
€ 1.039 / mese
Spese annue Spese annue
€ 300
Proponi il tuo prezzoProponi il tuo prezzo
Immobile valutato con T·Valuta

Classe Energetica

A1
A1
A1
A1
A1
A1
A1
A1
A1
EP globale non rinnovabile:
71.94 kW h/m² anno
EP globale rinnovabile:
5.47 kW h/m² anno
EP invernale del fabbricato:
EP estiva del fabbricato:
Anno di costruzione:
2020
Riscaldamento:
Autonomo
Tipo impianto:
A pavimento
Tipo alimentazione:
Metano

Prezzo ridotto di €1 (9%%)

Ti interessa visionare l'immobile?

Fissa un appuntamento  Fissa un appuntamento

Richiedi informazioni

Clicca su Leggi per aprire l'informativa
* Questi campi sono obbligatori

Calcola il tuo mutuo

Semplice e senza impegno
Anticipo

( % )
Mutuo

( % )

pochi semplici passi

inserisci i tuoi dati
Questionario completato
Grazie per aver richiesto un appuntamento senza impegno con un nostro Consulente del Credito e Assicurativo.

Hai inserito correttamente tutti i dati necessari e a breve riceverai una e-mail con un link da convalidare per inviare i tuoi dati.
Affiliato
Studio Cherasco Case Sas
Via Bra, 28/G 12062 Cherasco (CN)

Il nostro staff


  • Giusirosalia Piazza
    Affiliata

  • Sara Auddino
    Coordinatrice
Via Bra, 28/G 12062 Cherasco (CN)
Zona: Cherasco-Narzole-La Morra-Barolo-Novello
Mostra su mappa
Orari: Lunedi-Venerdi 9:00-12:30; 14:30-19:30 Sabato 9:00-12:30; 14:30-17:00
Affiliato
Studio Cherasco Case Sas
Via Bra, 28/G 12062 Cherasco (CN)

2026 Tecnocasa Franchising S.p.A. - P. IVA 08365160152 - Via Monte Bianco 60/A 20089 Rozzano (MI). Ogni agenzia ha un proprio titolare ed è autonoma. Privacy policy | Policy utilizzo | Cookie policy